China Shipbuild
  | 
Skip Navigation Links
Ship BuildExpand Ship Build
ShippingExpand Shipping
 Ship Building | Bulk Carrier | Container Ship | Oil Tanker | Offshore & Support Vessel |  Gas Carrier | Specialised & Others Vessel
 
 
 Jiangnan Shipyard
 Hudong-Zhonghua Shipbuilding
 CIMC Sinopacific (SOE)
 Keppel Nantong
 
 

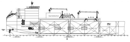
18,600 m³ LNG Bunker Vessel (Membrane, Mark-III), Developed by Hudong-Zhonghua Shipyard

MAIN PARTICULARS

Length (o.a.) 135.00 m
Breadth: 24.50 m
Depth to Main Deck: 16.00 m
Draught (Design, Mld):  6.50 m
Draught(Scantling, Mld):  6.80 m
Deadweight at  Td: 9,000 MT
Cruising Range: 1,200 NM
Service Speed: 12.0 knots 
Loading/Unloading Rate:  1,600 m³/h

TANK CAPACITIES 

Marine Diesel Oil: 900 m3
Fresh water and Distilled water: 150 m3
Ballast water: 8,000 m3
Cargo tank volume: 18,600 m3

   


7,500 m³ LNG Bunker Vessel (Diesel-Electric Propulsion), Developed by Jiangnan Shipyard

 

  • The Vessel to have a upper deck with canopy deck cover, bulbous bow, transom stern with open water type stern frame, a dual fuel diesel-electric configuration with three (3) dual fuel main generator engines, two (2) main azimuth propulsion thrusters and one (1) bow thruster.  
  • The Vessel to be built to have two (2) cylindrical independent IMO type C cargo tanks which to be designed for a maximum pressure of 3.5 bar g, a minimum temperature of -163ºC and a maximum cargo specific gravity of 0.5. 

MAIN PARTICULARS

Length (o.a.) 110.00 m
Breadth: 18.80 m
Depth to Main Deck: 10.80 m
Draught (Design, Mld):  5.60 m
Draught(Scantling, Mld):  5.80 m
Deadweight at  Td: 4,300 MT
Cruising Range: 7,500 nm
Service Speed: 13.0 kn

 TANK CAPACITIES 

Marine Diesel Oil: 550 m3
Fresh water and Distilled water: 180 m3
Ballast water: 2,600 m3
Cargo tank volume: 7,500m3

MAIN GENERATOR & PROPULSION SYSTEM

Generator: Wartsila 8L20DF x 3 Sets
Propulsion: Two (2) Sets
Service Speed: 13.0 kn

 


Orderbook   (* the orderbook for reference only, details please contact with the shipyard !)
No.Ship's Name / Hull No.Vessel TypeOwner CompanyShipyardDeliveryContract Date
1CMHI Nantong CMHI-303-02Bunkering Tanker (LNG), 20,000 cbmCaravel Group LtdChina Merchants HI, Haimen2027 - 122025 - 08
2CMHI Nantong CMHI-303-01Bunkering Tanker (LNG), 20,000 cbmCaravel Group LtdChina Merchants HI, Haimen2027 - 092025 - 08
3Hudong Zhonghua H1931ABunkering Tanker (LNG), 18,600 cbmIbaizabal GroupHudong-Zhonghua Shipbuilding2028 - 012025 - 07
4SOE S1130Bunkering Tanker (LNG), 20,000 cbmUnited Bunkers BVBACIMC Sinopacific (SOE)2027 - 092025 - 06
5Hyundai Mipo 8456Bunkering Tanker (LNG), 18,000 cbmIbaizabal GroupHyundai HI, Mipo2027 - 092025 - 05
6Hyundai Mipo 8457Bunkering Tanker (LNG), 18,000 cbmIbaizabal GroupHyundai HI, Mipo2027 - 112025 - 05
7Jiangnan H2905Bunkering Tanker (LNG), 20,000 cbmSIPG (上港集团)Jiangnan Shipyard2027 - 052025 - 04
8SOE S1129Bunkering Tanker (LNG), 20,000 cbmUnited Bunkers BVBACIMC Sinopacific (SOE)2027 - 062025 - 04
9Huangpu Wenchong H2592Bunkering Tanker (LNG), 20,000 cbmSingfar InternationalHuangpu-Wenchong Shipbuilding2027 - 082025 - 03
10Huangpu Wenchong H2593Bunkering Tanker (LNG), 20,000 cbmSingfar InternationalHuangpu-Wenchong Shipbuilding2028 - 032025 - 03
11Xinle XL-238Bunkering Tanker (LNG), 20,000 cbmSeaKapital Limited, Hong KongXinle Shipyard2027 - 032025 - 02
12Xinle XL-239Bunkering Tanker (LNG), 20,000 cbmSeaKapital Limited, Hong KongXinle Shipyard2027 - 062025 - 02
13CelsiusBunkering Tanker (LNG), 7,800 cbmSirius Rederi ABRMK Marine Shipyard20272025 - 02
14Hyundai Mipo 8452Bunkering Tanker (LNG), 17,640 cbmEvalend ShippingHyundai HI, Mipo2027 - 102025 - 02
15Hyundai Mipo 8453Bunkering Tanker (LNG), 17,640 cbmEvalend ShippingHyundai HI, Mipo2028 - 052025 - 02
16Hyundai Mipo 8455Bunkering Tanker (LNG), 10,924 tonsEvalend ShippingHyundai HI, Mipo2028 - 122025 - 02
17Hyundai Mipo 8454Bunkering Tanker (LNG), 10,924 tonsEvalend ShippingHyundai HI, Mipo2028 - 082025 - 02
18SOE S1128Bunkering Tanker (LNG), 12,000 tonsEquatorial Marine Fuel ManagementCIMC Sinopacific (SOE)2027 - 122024 - 12
19Jiangmen Hangtong HTJ24207Bunkering Tanker (LNG), 8,500 cbmHercules Tanker Management LtdJiangmen Hangtong Shipbuilding2026 - 122024 - 12
20Jiangmen Hangtong HTJ24208Bunkering Tanker (LNG), 8,500 cbmHercules Tanker Management LtdJiangmen Hangtong Shipbuilding2027 - 032024 - 11
21Jiangmen Hangtong HTJ24209Bunkering Tanker (LNG), 8,500 cbmHercules Tanker Management LtdJiangmen Hangtong Shipbuilding2027 - 062024 - 11
22Jiangmen Hangtong HTJ24210Bunkering Tanker (LNG), 8,500 cbmHercules Tanker Management LtdJiangmen Hangtong Shipbuilding2027 - 092024 - 11
23Jiangmen Hangtong HTJ24206Bunkering Tanker (LNG), 8,500 cbmHercules Tanker Management LtdJiangmen Hangtong Shipbuilding2026 - 112024 - 11
24Jiangmen Hangtong HTJ24205Bunkering Tanker (LNG), 8,500 cbmHercules Tanker Management LtdJiangmen Hangtong Shipbuilding2026 - 102024 - 11
25Hyundai Mipo 8419Bunkering Tanker (LNG), 12,500 cbmKorea Line CorporationHyundai HI, Mipo2027 - 052024 - 10
Records: 43,   Page: 1  2  



Want to build this vessel? Please leave your message & contact detail here:
 
chinashipbuild.com 2026